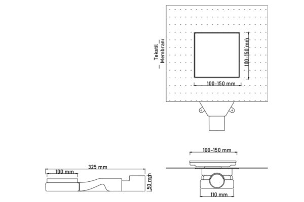
Описание
- Точков подов сифон с горен капак 3мм
- Основно тяло патентовано без уплътнителна част
- Наклон във вътрешната част на тялото на сифона
- Решетка за косми с мембрана против миризми
- Ексцентричен редуктор
- Изолационна мембрана
- Изолационен фланец
- Въртящ се сифон на 360°
- Минимална височина на замазка 60 мм
- Неръждаема стомана AISI 304 с електрополирано покритие.
Артикули от този вид:




























