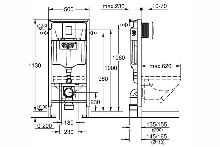
Rapid SL Структура за WC(38528001)
• Казанче GD 2
• За монтаж в сухи стени и пред стена
• Носеща стоманена рамка, прахово боядисана
• Подходяща за облицовка с гипсокартон
• Фиксирани входна и изходна гарнитури
• Възможност за регулиране на височината
• Крепежни елементи
• TUV сертификат
• Два крепежни болта за конзолнатоалетна чиния
• Крепежи за керамика
• За монтаж на керамика с малка носеща повърхност (под 205 mm) е необходима допълнителна опора 38 779 000
• Разстояние между болтовете 180/230 mm
• Изходна тръба Ø 90 mm
• С възможност за регулиране в дълбочина
• Редуктор Ø 90/110 mm
• Входна и изходна гарнитура
• Казанче GD 2, 6-9 l, със следните характеристики:
• Фабрична настройка 3-6L
• Изпразващ пневматичен механизъм с двефункции: 2 степени и старт/стоп механизъм
• Странично или задно водоподаване
• Шумоизолиращ клас I
• Изолация против конденз
• Интрегриран ъглов спирателен кран 1/2″
• Не са необходими допълнителни инструменти за монтаж на ревизионната кутия
• За вертикален или хоризонтален монтаж
Rapid SL Стенни планки за монтаж (3855800M)
• За монтаж пред стена
• За фиксиране на елемента към стената
• Плавно регулиране в дълбочина 130-230 mm
• За единичен или сериен монтаж
• Крепежни елементи
• 2 броя
Skate Air Бутон хром (38505000)
Артикули от този вид:
